
For developers, builders, and distributors, choosing the right North American Kitchen Cabinet Makers is a strategic decision—not just a design choice. In 2026, the market is shaped by consolidation at the top, strong regional specialists in Canada and the U.S., and fast-growing semi-custom brands focused on value and speed.
This guide highlights 10 leading manufacturers headquartered in the U.S. and Canada. You’ll see what each does best, where they fit on the price–performance spectrum, and how they support large projects as well as premium residential work.
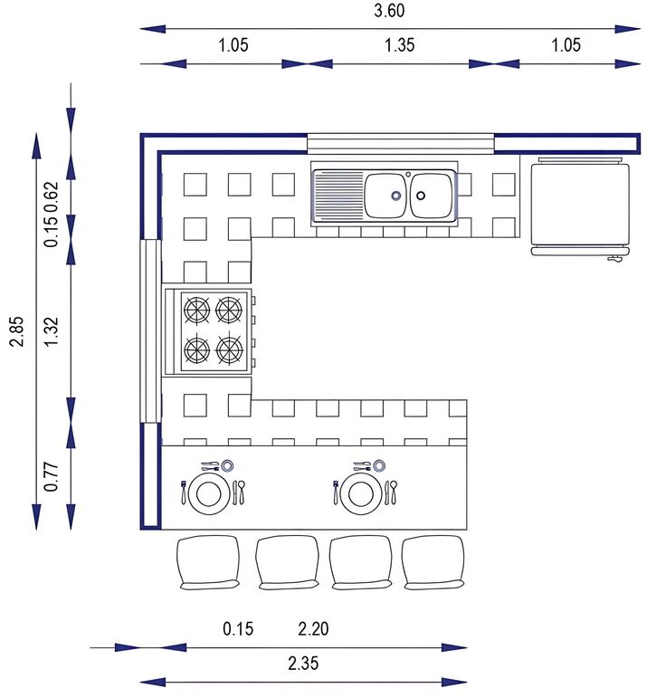
Understanding standard Kitchen Island Dimensions is the foundation of good design.
Typical Kitchen Island Sizes
Length: 1200–2400mm
Width: 600–1200mm
Height:
900mm (standard worktop)
950–1050mm (bar-height seating)
These dimensions offer sufficient workspace while maintaining comfortable movement within the kitchen.
Clearance is just as important as island size.
Recommended Clearances
Minimum clearance: 900mm
Ideal clearance: 1000–1200mm
For multiple cooks: 1200mm+
Proper clearance ensures doors, drawers, and appliances can open freely while maintaining safe traffic flow.Industry-standard kitchen island clearance guidelines published by NKBA emphasize the importance of maintaining safe and comfortable circulation in residential kitchens.
Different kitchen layouts require different island proportions.
L-Shaped Kitchens
Medium-sized islands (1400–2000mm)
Ideal for prep and casual seating
U-Shaped Kitchens
Narrower islands (600–900mm wide)
Focus on workflow efficiency
Open-Plan Kitchens
Larger statement islands (2000–2400mm)
Often include seating, storage, and appliances
To better understand how kitchen island dimensions evolve with contemporary layouts, you can explore modern kitchen island design trends on ArchDaily, a leading global architecture and interior design platform.
Seating requirements significantly affect island size.
Seating Guidelines
Per person: 600mm width
Overhang depth:
250–300mm (light seating)
300–350mm (comfortable dining)
Proper seating dimensions ensure comfort without compromising structural stability.
A well-designed island balances size with purpose.
Functional Optimization Tips
Combine prep zones with hidden storage
Integrate drawers instead of doors for better access
Avoid oversized islands that disrupt circulation
Match island scale to ceiling height and cabinetry proportions
Optimized Kitchen Island Dimensions improve both efficiency and long-term usability.
If your island includes appliances, dimensions must be adjusted.
Appliance Considerations
Sink islands: allow space for plumbing + prep zones
Cooktop islands: require extra clearance and ventilation
Dishwasher integration: minimum 900mm aisle clearance
Always plan appliance placement early to avoid layout conflicts.
For apartments, villas, and hospitality projects, standard sizes may not be enough.
Custom Kitchen Island Dimensions allow:
Better space utilization
Consistent design across units
Integration with bespoke cabinetry systems
Custom solutions are especially valuable for developers seeking functional consistency and premium aesthetics.
From AIS SMARTI’s project experience across residential developments, serviced apartments, and hospitality interiors, Kitchen Island Dimensions are most successful when they are planned as part of the entire cabinetry system—not as standalone elements. Islands that perform well over time are those whose proportions align with surrounding cabinets, ceiling heights, and circulation paths.
In practice, AIS SMARTI focuses on designing kitchen islands that support real daily behavior. This means ensuring drawer depths match storage needs, overhangs are structurally balanced, and clearances remain practical even after appliances and door swings are considered. Rather than maximizing size, the emphasis is placed on functional efficiency, visual harmony, and long-term usability.
For multi-unit projects, consistent kitchen island dimensions also help streamline production and installation while maintaining a cohesive design language across units. This approach allows kitchen islands to remain visually refined, easy to maintain, and adaptable to different living scenarios—without compromising comfort or workflow.
Well-planned Kitchen Island Dimensions are essential to creating kitchens that feel open, efficient, and timeless. From determining the right size and clearance to integrating seating, storage, and appliances, every dimensional decision directly affects how the kitchen performs in daily use.
In 2026, kitchen islands are no longer decorative additions—they are functional centers that must balance aesthetics with practicality. Thoughtful dimension planning helps prevent common layout issues, improves workflow, and ensures the island enhances rather than limits the surrounding space.
By approaching kitchen island design holistically—considering layout, user behavior, and long-term performance—designers and developers can create kitchens that remain comfortable and visually balanced for years to come. Whether for private homes or large-scale projects, investing time in optimizing kitchen island dimensions results in better functionality, smoother installation, and stronger overall design consistency.
1. What are standard kitchen island dimensions?
Standard Kitchen Island Dimensions range from 1200–2400mm in length and 600–1200mm in width, depending on layout and function.
2. How much space is needed around a kitchen island?
A minimum of 900mm clearance is required, while 1000–1200mm is ideal for comfortable movement.
3. Can a small kitchen have an island?
Yes, but the island should be compact (1200–1400mm) and clearances must not be compromised.
4. What is the best kitchen island height?
900mm is standard for worktops, while 950–1050mm works best for bar seating.
5. How many seats can a kitchen island accommodate?
Allow approximately 600mm width per person for comfortable seating.
6. Are custom kitchen island dimensions better than standard?
Custom dimensions offer better space optimization, especially for apartments, villas, and large-scale projects.
7. What are the standard kitchen island dimensions?
Standard Kitchen Island Dimensions usually range from 1200–2400mm in length and 600–1200mm in width, depending on the kitchen layout and intended function. These dimensions allow enough workspace while maintaining comfortable circulation.
8. How much clearance is needed around a kitchen island?
A minimum clearance of 900mm is required around a kitchen island. For better comfort—especially in family kitchens or multi-user spaces—1000–1200mm of clearance is recommended.
9. What is the ideal kitchen island size for open-plan kitchens?
In open-plan layouts, larger kitchen islands between 1800–2400mm work well. Based on project experience from AIS SMARTI, open-plan kitchens benefit from islands that combine prep space, seating, and storage while maintaining visual balance with surrounding cabinetry.
10. Can a small kitchen have a kitchen island?
Yes, but the island should be compact—typically 1200–1400mm in length—and clearances must not be compromised. In some compact projects, AIS SMARTI applies slim-profile islands or multi-functional designs to maximize usability without overcrowding the space.
11. Can kitchen island dimensions be adjusted for hospitality projects?
Yes. In hospitality and serviced apartment projects, kitchen island dimensions are often optimized for durability, safety, and ease of maintenance. AIS SMARTI typically focuses on balanced proportions that work across multiple units while maintaining design consistency.
